Search Properties

The Grove, Corby

Corby

£1,200 pcm

3 x 1 x
Department:
Lettings
Type:
Terraced House
Availability:
Let Agreed
Receptions:
1
Furnished:
Unfurnished
Deposit:
£1,384
Available Date:
2025-10-31
Council Tax Band:
A

Property features

  • Three Good sized Bedrooms
  • Large Enclosed Rear Garden
  • Parking for 2 vehicles
  • Log Burner
  • Downstairs Bathroom
  • Kitchen / Diner
  • Close to local amenities

Summary

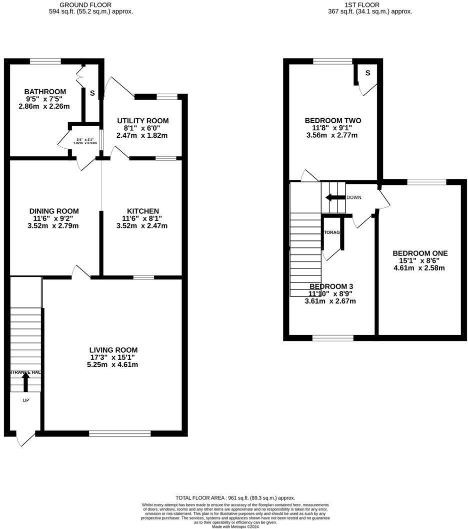
Stuart Charles are delighted to be able to offer to the market TO LET three bedroom Victorian terraced property.
The property includes some original features and a stunning wood burning stove with Victorian surround and hearth.
The accommodation comprises of entrance hall, large living room opening onto a modern kitchen diner with a range of base and eye level units and space for appliances, the dining area is a great size and can easily accommodate a six seat table.
You will also find a garden room/ conservatory/utility room with plumbing for white goods.
A Modern and well presented family bathroom to the ground floor with shower over the bath.
Upstairs you will find three bedrooms, two of which are double in size and a generous single bedroom.
Outside to the front of the property you will find off road parking for two vehicles whilst to the rear there is a generous family garden enclosed by timber fencing and completed with feature pergola.

Call to view !!!

Details

Living Room 5.18m.0.00m x 4.57m.0.30m (17.00 x 15.01)

Kitchen 2.13m.1.52m x 3.05m.3.35m (7.05 x 10.11)

Dining Room 2.44m.0.30m x 3.35m.1.83m (8.01 x 11.06)

Bedroom One 3.66m.0.00m x 2.13m.2.74m (12.00 x 7.09)

Bedroom Two 4.27m.1.83m x 2.44m.1.52m (14.06 x 8.05 )

Bedroom Three 3.05m.3.35m x 2.44m.0.61m (10.11 x 8.02)

Floor Plans

EPC

Request Further Details

Or arrange a viewing