Search Properties

Blake Road, Corby

Corby

£195,000

2 x 1 x
Department:
Sales
Type:
Semi-Detached House
Availability:
Sold STC
Receptions:
1
Tenure:
Freehold
Council Tax Band:
A

Property features

  • LARGE CORNER PLOT
  • POTENTIAL TO EXTEND
  • OPEN PLAN KITCHEN/DINER
  • TWO DOUBLE BEDROOMS
  • MODERN FITTED SHOWER ROOM
  • OFF ROAD PARKING FOR SEVERAL VEHICLES
  • CLOSE TO TOWN CENTRE
  • WALKING DISTANCE TO SHOPS
  • NEW WINDOWS
  • NEW FRONT DOOR

Summary

Stuart Charles are delighted to offer for sale this modern TWO DOUBLE bedroom semi detached home located a short walk from Corby's thriving town centre. Having been updated by the current owners and occupying a larger than normal plot a viewing is recommended to avoid missing out on this home. The accommodation on offer comprises to the ground floor of an entrance hall, lounge and open kitchen/diner to the rear. To the first floor are two double bedrooms and refitted shower room. Outside to the front is a low maintenance gravelled garden which is enclosed by timber fencing, while to the rear a raised patio area leads down onto two further gravelled areas and a low maintenance laid lawn with hard standing areas for sheds. To the side of the garden double gates lead into a large driveway that provides off road parking for three vehicles. Call now to view!!.

Details

Entrance Hall
Entered via a double glazed door, radiator, under stairs storage, doors to:

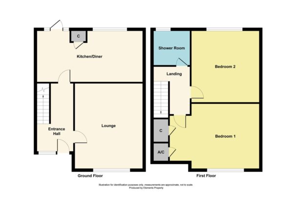
Lounge 3.66m x 3.20m (12'99 x 10'6)
Double glazed window to front elevation, Tv point, radiator, space for electric fire.

Kitchen/Diner 5.03m x 2.13m (16'6 x 7'72)
Fitted to comprise a range of base and eye level units with a single steel sink and drainer, gas hob with extractor, electric oven, space for automatic washing machine, space for free standing fridge/freezer, breakfast bar, radiator, built in pantry cupboard, double glazed window to rear elevation, double glazed door to rear elevation.

First Floor Landing
Loft access, doors to:

Bedroom One 4.09m x 3.15m (13'5 x 10'4)
Double glazed window to front elevation, radiator, tv point, built in wardrobe, airing cupboard.

Bedroom Two 3.20m x 3.12m (10'6 x 10'3)
Double glazed window to rear elevation, radiator.

Shower Room 1.60m x 1.55m (5'3 x 5'1)
Fitted to comprise a three piece suite featuring a mains feed walk in double shower, low level pedestal, low level wash hand basin, extractor, radiator, double glazed window to rear elevation.

Outside
Front: Laid to gravel and enclosed by timber fencing to all sides.

Side: A large driveway provides off road parking for multiple vehicles and leads to the rear garden.

Rear: A large patio area leads down to two separate large gravelled areas and leads onto a low maintenance laid lawn and is enclosed by timber fencing to all sides.

Floor Plans

EPC

Request Further Details

Or arrange a viewing